Mở bán 3 Lô Đất thổ Cư 51.52.54m Đất Thổ Cư – Giá 3x/m2 Tại Xã An Thượng, Hoài Đức Hà Nội – Mặt tiền 4.5m – Dài 11.5m – Hướng Đông – Đường trước nhà 2.5m Cách Đường ô tô tránh 100m
Danh mục: Bất Động Sản An Thượng
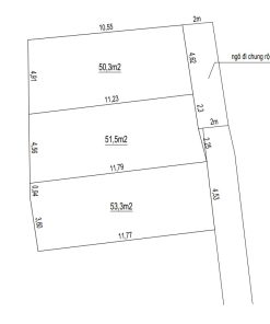
Chính chủ bán 51.52.54m Đất Thổ Cư Tại Thanh Quang, Xã An Thượng, Hoài Đức Hà Nội
– Mặt tiền 4.5m
– Dài 11.5m
– Hướng Đông
– Đường trước nhà 2.5m Cách Đường ô tô tránh 100m
– Ngay nhà văn hóa, ubnd, trạm y tế, trường mầm non, cấp 1.2. Học viện chính sách và Phát triển
– Ngay KĐT Nam An Khánh, Hado chamr villas, vinhome thăng long
– Ngay đường liên khu 8, Đại Lộ Thăng Long, Lê Trọng Tấn
Quý anh chị quan tâm xem đất alo em ngay ak
0902866636. 0937031666
Sản phẩm tương tự
Bất Động Sản An Thượng
Bán Gấp Nhà 1 Tầng 62m2 Vị trí: Đào Nguyên, An Thượng, Hoài Đức, Hà Nội – Diện tích 62m



























